CARACTÉRISTIQUES
Maîtrise d’ouvrage Commune de Bron
Type Extension et construction neuve, mise en accessibilité, restructuration partielle
Surface 1 582 m² + 326 m² d’aménagements extérieurs
Montant 4 376 831 € HT
Phase Chantier
Équipe RHB, SERUE, DB SILENCE, ESSE, RISE
Missions BASE + DIAG + EXE + OPC
Performance énergétique RE2020 (extension) RT2012 (restaurant scolaire)
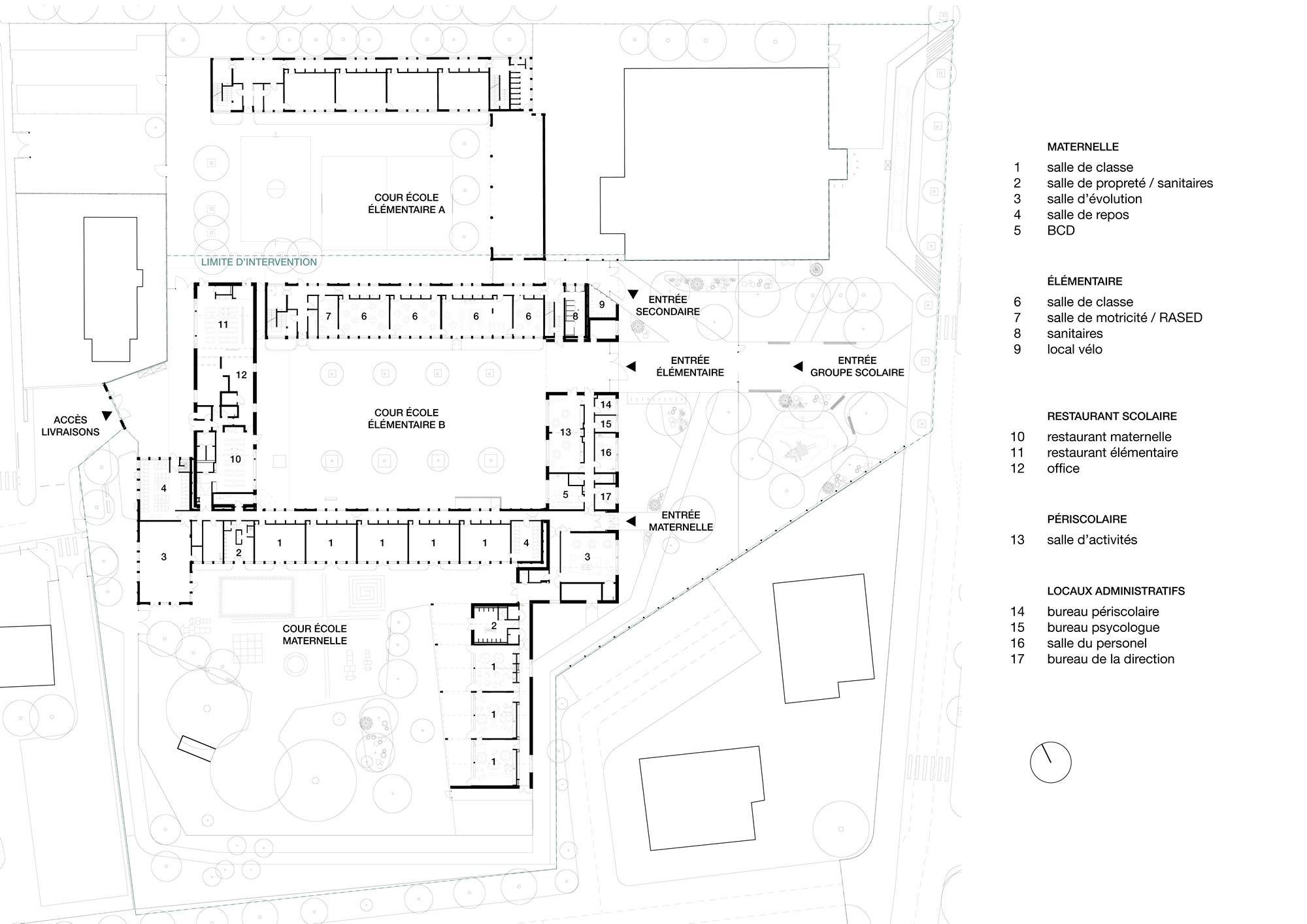
Programme Restaurant scolaire (140 couverts), 2 salles de classe maternelle, salle d’évolution, sanitaires, direction, périscolaire, loge gardien, abri vélo, parvis public, préau maternelle, préau élémentaire, 2 salles de repos, local ATSEM, salles élémentaires (BCD, RASED, 3 salles de dégroupement)





